ID CP3043447

AP. 3 CAMERE - GRADINA 150 MP, PARCARE INCLUSA IN PRET, COMISION 0%

ID CP3043447

103,305 € + 21% TVA

Apartament cu 3 camere de vânzare
Fundeni, Bucuresti
75 mp
2026

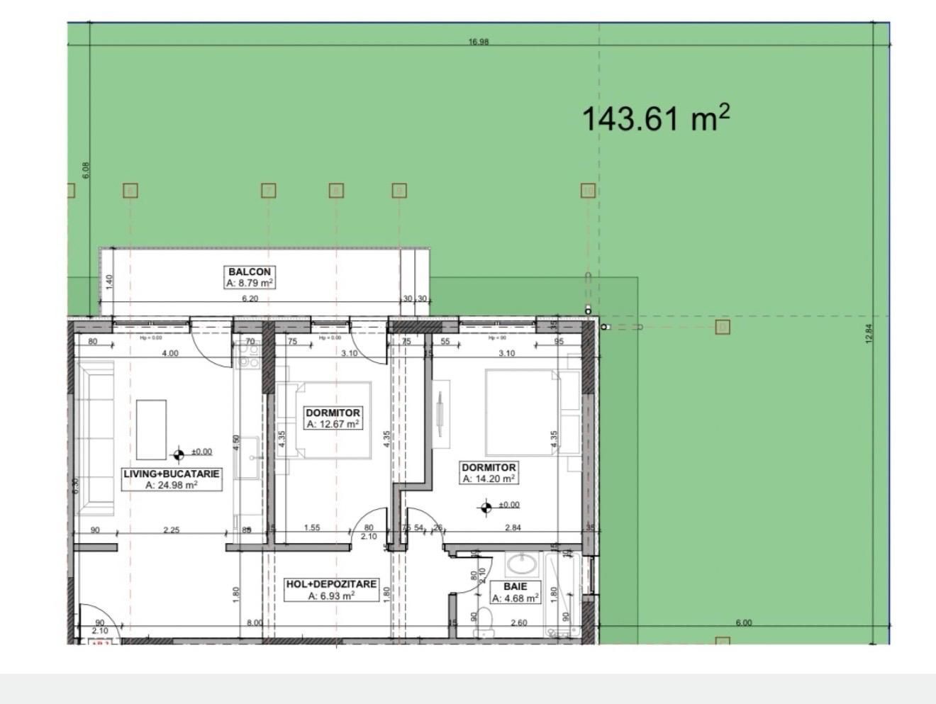
AM Imobiliare va prezinta spre vanzare un apartament de 3 camere cu gradina proprie, ce masoara 150 mp.

Apartamentul se afla la parterul unui imobil nou, cu finalizare in luna martie, in zona Fundeni, de la Pod spre Dragonul Rosu.

Apartamentul este complet decomandat, cu bucataria open-space si masoara 75 mp utili.

Locul de parcare suprateran este inclus in pret!

PRETUL AFISAT NU INCLUDE TVA.

Pret: 103,305 + TVA 21% - COMISION AGENTIE 0%

Daca doresti mai multe detalii, nu ezita sa ne contactezi, te vom insoti la vizionare si iti vom oferi toate detaliile de care ai nevoie! De asemenea te invit pe site-ul agentiei noastre, www.amimobiliare.ro, pentru a vedea si alte proprietati pe care le avem in portofoliu.

Citește mai mult

  • Tip apartament
    Apartament
  • Compartimentare
    Decomandat
  • Număr camere
    3
  • Dormitoare
    2
  • Număr bucătării
    1
  • Număr băi
    1
  • Etaj
    Parter
  • Suprafață utilă
    75 mp
  • Suprafață construită
    85 mp
  • Suprafață curte
    150 mp
  • Disponibilitate
    Imediat
  • Confort
    1
  • Stare interior
    Nou
  • Anul finisării
    2026
  • Număr locuri parcare
    1
  • Imobil
    Bloc de apart.
  • Stadiu construcție
    La gri
  • An construcție
    2026
  • Construcție nouă
    Da
  • De la dezvoltator
    Da
  • Tip construcție
    Beton
  • Reabilitat termic
    Da
  • Număr etaje clădire
    3

Facilități

Acoperiș
Apă
Apometre
Bucătărie deschisă
Calorifere
Canalizare
CATV
Centrală proprie
Contor căldură
Contor electric
Contor gaz
Curent
Curte
Faianță
Gaz
Geamuri tripan
Grădină proprie
Gresie
Iluminat stradal
Interfon
Internet
Izolație exterioară
Mijloace de transport în comun
Nemobilat
Parcare deschisă
Parchet
Senzor de fum
Străzi asfaltate
Supraveghere video
Telefon
Ușă intrare metal
Uși interior celulare
Vopsea lavabilă
Wireless
Mihaela Mariuta - AM Imobiliare
Mihaela Mariuta
Manager

0731840533


Solicită chiar acum o vizionare
Telefon
Sună acum Solicită vizionare
Necesare:

Site-ul nu poate funcționa corect fără aceste cookie-uri. Vezi cookie-urile

Statistică:

Strângem statistici anonime despre voi, vizitatorii unici, pentru a vă îmbunătăți experiența dumneavoastră. Vezi cookie-urile

Marketing:

Pentru a ne promova mai eficient serviciile noastre, folosim cookies pentru a vă identifica și a vă oferi proprietăți și servicii personalizate. Vezi cookie-urile

Acest site folosește cookies, află detalii. Alege ce tipuri de cookies dorești să permitem: