ID CP3036931

AP. 3 CAMERE- TITAN, BLOC REABILITAT, MOBILAT/UTILAT, COMISION 0%

ID CP3036931

105,000 €

Apartament cu 3 camere de vânzare
Titan, Bucuresti
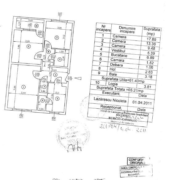
65.21 mp
1972

AM Imobiliare va prezinta spre vanzare un apartament cu 3 camere, decomandat.Este situat in zona Titan, mai exact pe Strada Jean Alexandru Steriadi, la numai 15 minute fata de gura de metrou.

Acesta este amplasat la etajul 4/4, intr-un imobil din anul 1972 reabilitat, si se intinde pe o suprafata utila de 65,21 mp, inclusiv 1 balcon 3.81 mp.

Confortul termic este asigurat prin termoficare cu incalzire in calorifere.

Bucataria este deschisa, complet mobilata si utilata pentru confortul zilnic.

Complet renovat in anul 2022, inclusiv intalatiile electrice si sanitare.

Pret: 105.000 euro - COMISION 0%

Daca doresti mai multe detalii, nu ezita sa ne contactezi, te vom insoti la vizionare si iti vom oferi toate detaliile de care ai nevoie! De asemenea te invit pe site-ul agentiei noastre, www.amimobiliare.ro, pentru a vedea si alte proprietati pe care le avem in portofoliu.

Citește mai mult

  • Tip apartament
    Apartament
  • Compartimentare
    Decomandat
  • Număr camere
    3
  • Dormitoare
    2
  • Număr bucătării
    1
  • Număr băi
    1
  • Etaj
    4
  • Suprafață utilă
    65.21 mp
  • Suprafață construită
    75.21 mp
  • Disponibilitate
    Imediat
  • Confort
    1
  • Stare interior
    Finisat modern
  • Anul finisării
    1972
  • Număr balcoane
    1
  • Imobil
    Bloc de apart.
  • Stadiu construcție
    Finalizată
  • An construcție
    1972
  • Tip construcție
    Beton
  • Reabilitat termic
    Da
  • Număr etaje clădire
    4

Facilități

Acoperiș
Aer condiționat
Apă
Apometre
Bucătărie deschisă
Bucătărie mobilată
Bucătărie parțial mobilată
Bucătărie parțial utilată
Cadă
Calorifere
Canalizare
CATV
Contor căldură
Contor electric
Contor gaz
Curent
Faianță
Ferestre PVC
Gaz
Geamuri termopan
Gresie
Iluminat stradal
Interfon
Internet
Izolație exterioară
Loc de joacă copii
Mașină de spălat rufe
Mașină de spălat vase
Mijloace de transport în comun
Parchet
Pază
Pază permanentă
Senzor de fum
Străzi asfaltate
Supraveghere video
Telecomandă poartă acces auto
Telefon
Termoficare
Ușă intrare metal
Uși interior celulare
Vedere spre oraș
Vopsea lavabilă
Wireless
Mihaela Mariuta - AM Imobiliare
Mihaela Mariuta
Manager

0731840533


Solicită chiar acum o vizionare
Telefon
Sună acum Solicită vizionare
Necesare:

Site-ul nu poate funcționa corect fără aceste cookie-uri. Vezi cookie-urile

Statistică:

Strângem statistici anonime despre voi, vizitatorii unici, pentru a vă îmbunătăți experiența dumneavoastră. Vezi cookie-urile

Marketing:

Pentru a ne promova mai eficient serviciile noastre, folosim cookies pentru a vă identifica și a vă oferi proprietăți și servicii personalizate. Vezi cookie-urile

Acest site folosește cookies, află detalii. Alege ce tipuri de cookies dorești să permitem: